Gemeinderatsprotokolle seit 2002

Jahr: 2022

/ Ausgabe: 2022-10-25-GR-Protokoll.pdf

- S.357

Suchen und Blättern in über 500 PDFs und 44.000 Seiten.





vorhergehende ||| nächste Seite im Dokument

Zur letzten Suche
Diese Ausgabe – 2022-10-25-GR-Protokoll.pdf
Ausgaben dieses Jahres – 2022
Alle Ausgaben

Dieses Bild anzeigen/herunterladen
Gesamter Text dieser Seite:
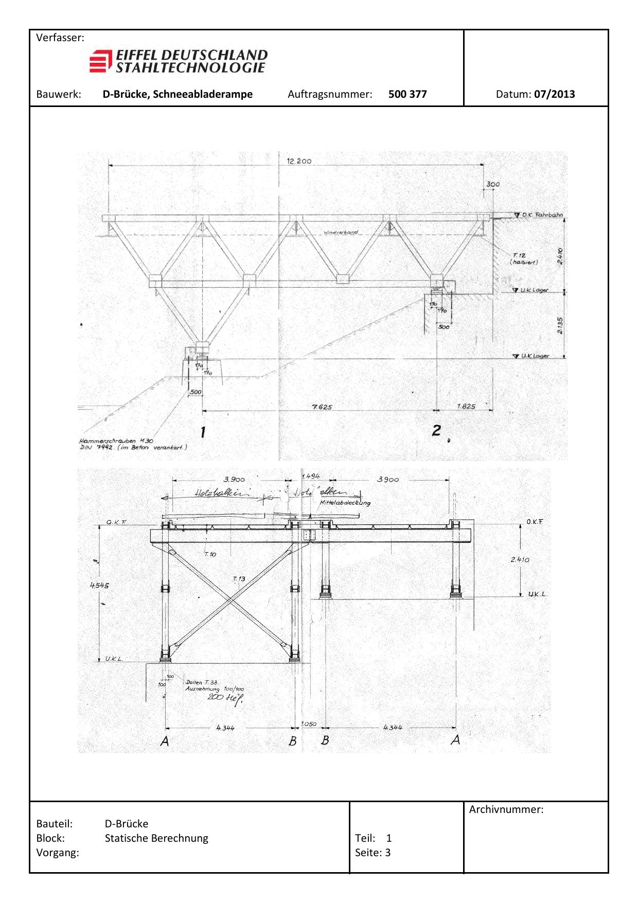
Verfasser:

.:, f/fffl DEUTSCHLAND
:="
STAHLTECHNOLOG/E
Bauwerk:

D-Brücke, Schneeabladerampe

Auftragsnummer:

500 377

Datum: 07/2013

------- "

1

f
.• !

"

1

3 900

. U.1t:1. .

B

A ·;

ß

Archivnummer:

Bauteil:
Block:
Vorgang:

D-Brücke
Statische Berechnung

Teil: 1
Seite: 3